11月21日,英国威廉集团官网成功举办以“定制梦想空间,打造专属家园”为主题的建筑模型大赛平面图专项评审活动,旨在鼓励同学们优化理想居住空间、激发创新活力。
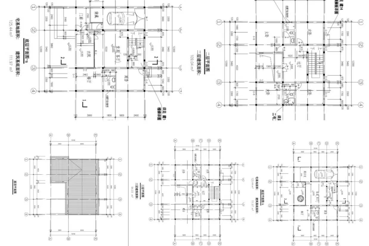
本次活动面向全院员工,共收取74份参赛作品,每一件作品都反映着同学们的专业认知和创造水平。评委们依据主题传达、布局规划、比例确定等多项标准,对参赛作品进行了严格评审,最终评选出一、二、三等奖。其中,杨宸同学的作品凭借紧扣主题、布局合理、比例精准及巧妙的设计脱颖而出,荣获一等奖。
此次平面图专项活动不仅彰显了同学们创新活力,也为校园生活增添了一抹专业色彩,丰富了同学们的文化生活。这些充满创意的作品,承载着同学们对未来生活空间的美好憧憬,也反映了时代化的建筑设计方向,为青年驰骋思想打开了更加浩澣的天空,为青年实践创新搭建了更加广阔的舞台。


